环保量房 | 建设美好新家,从环保量房开始

新家建设第一步,
环保量房很重要。
好设计
先量房
这次去环保量房的业主是一对年轻夫妻,女主人是教师,男主人是销售职业。计划未来两年左右迎来小宝宝,家里面有一只宠物猫。
陈苏伶设计师告诉我们,之前和业主有沟通过装修需求:
1、女主人希望有一个空间可以日常发发呆和看书;
2、男主人希望有投影幕布可以享受家庭电影。喜欢温馨明快的北欧风格。
3、厨房太小了,开门不方便。
因此陈设计师和业主建议:改变厨房开门方向,面朝餐厅做推拉门,增加厨房采光,让餐厨动线更合理。在餐厅做储物柜到顶部,增加酒柜的功能,既可以储物又可以有较为美观的展示。三个卧室可以考虑将较小的卧室做成榻榻米房间放置投影,满足储物,书房和临时客房功能。

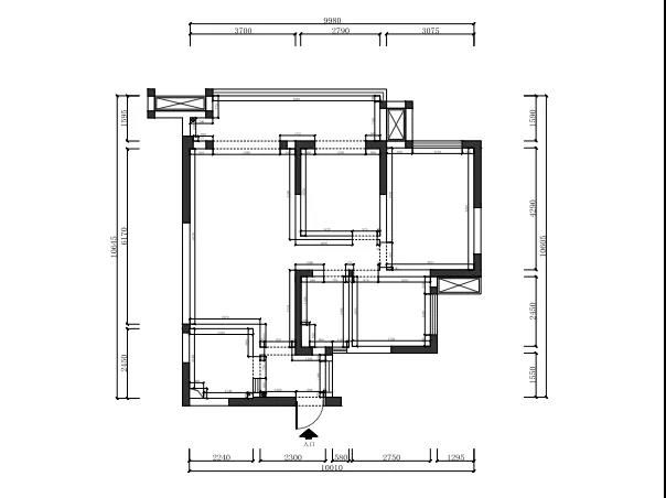
(户型图)
业主很认可她的想法,所以今天带着环保量房箱就来到了业主家进行环保量房。为下一步的环保设计方案做好数据收集。
业之峰环保量房箱
包含环保量房所必备的26种工具,可以测量出环保设计所必不可少的66个关键数据,交付给客户4张环保检测单、2张房屋记录单、辅助预案共计218张,相当于为房子做了一个全面、专业的“体检诊断”。

环保量房中

【环保量房箱】




经过几个小时的环保量房,陈设计师对整个房屋的布局、尺寸已经十分了解。客厅阳台和次卧阳台是相通的,可以考虑将客厅阳台和卧室阳台做隔断,将次卧阳台变成书房空间。
如果你的新家准备装修,但又没什么好的想法,不如先做一次环保量房,比开发商更了解自己的房子,才更好作出对家美好的规划哦!
温馨提示
现在开始预约业之峰的环保量房服务,即可免费上门进行测量。为您的新家做全面而且专业的“体检诊断”,用数据让美好生活清晰可见!
- 1.本站遵循行业规范,任何转载的稿件都会明确标注作者和来源;
- 2.本站的原创文章,请转载时务必注明文章作者和来源,不尊重原创的行为我们将追究责任;
- 3.作者投稿可能会经我们编辑修改和补充。




京公安网备11010502040911