峰翼高端工作室胡东宇作品《都江堰宁江大院》荣获艾特奖
成都业之峰装饰峰翼高端设计工作室胡东宇设计师作品荣获第九届艾特奖入围奖,其获奖作品为《都江堰宁江大院》。

一直秉持着自信、热爱、敏锐工作态度的胡东宇设计师从大学毕业到成为获奖无数的优秀设计师,已经历15个春秋的沐浴。他对设计敏锐的洞察,精准的拿捏使他的作品向我们展示了一个优秀的设计师也肯定会用百分百的热情认真对待每一位业主的新家。
设计师介绍

关于艾特奖

9年沉淀
全球近45个国家
100W+设计师
超40000件作品
参与国际空间设计大奖
——IDEA-TOPS艾特奖角逐

艾特奖为中国建筑室内设计行业门户网站:中华室内设计网联合中国三大权威学术机构——清华大学美术学院、中央美术学院、天津美术学院共同发起主办的国际空间设计大奖,旨在打造全球具思想性和影响力的设计大奖,发掘和表彰佳设计师和佳设计作品。
众所周知,艾特奖对设计师作品要求很高,审核标准也很严格,是设计领域含金量极高的设计大赛,不光要求设计师对设计理念有清晰、准确地陈述,还将会从作品的原创性、有效性、忠实性、功能性、创造性、美观性、节能环保等主要方面进行评审。因此,能够入围艾特奖对设计师来说无疑是好的肯定。
胡东宇设计师虽已拿过很多设计大奖,对此还是感到很兴奋:“很高兴本次作品能荣获艾特奖,这对我来说也是一个很大的肯定。在未来的设计之路上我也会更用心的去挖掘新创意、对每一个作品饱有同样的热情,将最真挚的情感寄于创作过程,成就更完美的作品;去帮助客户建设最贴合他们内心的设计,让他们有一个最舒适的基层去创建美好家庭。”
获奖作品赏析
案列名称:禅茶一味,宁静致远
案例地址:宁江大院
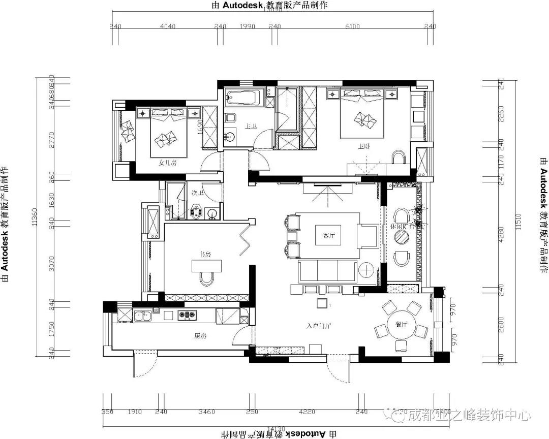
户型名称:平层
户型面积:140平米
本案例装修风格:新中式
小隐于野,大隐于市。纷繁的都市中独辟一方,禅茶一味宁静致远。
本案例以清新淡雅的中式设计手法,意在勾勒禅意的空间意境。融合了中式雍容而内敛的特征,清新而不失厚重,在追求精致细节的同时,突出简约舒适的实用功能。
除此之外,还融入了一些当代设计元素,表达了当代东方空间意韵。
平面设计图

实景效果图赏析


- 客厅效果图 -


- 客厅实景图 -

- 阳台效果图 -

- 阳台实景图 -

- 主卧效果图 -



- 主卧实景图 -

- 电视墙实景图 -

- 电视墙实景图特写 -

- 餐厅实景图 -

- 餐厅实景图特写 -

- 厨房实景图 -

- 过道玄关实景图 -





- 门厅实景图 -

- 主卧软装实景图-
正如胡东宇设计师在设计说明中所说的那样:“纷繁的都市中独辟一方,禅茶一味宁静致远。”在欣赏过从平面图到效果图再到实景图后,我们似乎对这项获奖作品中表达的意韵理解的更加深刻了。寥寥繁华中一壶清茶,既有中式装修风格中的雍容严肃,又有当代设计风格的简约实用。
从露着淡雅光亮的灯饰到垂坠在木地板上的中式窗帘,我们似乎不用到达现场就能嗅到一股典雅清香;陶瓷和木材的搭配便是最经典的东方韵味,走进这样的住宅很难不静下心来,主体宏观到细枝末节都彰显了设计师的独运匠心。再次恭喜胡东宇设计师!
- 1.本站遵循行业规范,任何转载的稿件都会明确标注作者和来源;
- 2.本站的原创文章,请转载时务必注明文章作者和来源,不尊重原创的行为我们将追究责任;
- 3.作者投稿可能会经我们编辑修改和补充。




京公安网备11010502040911